Top.Mail.Ru
Проектирование и строительство загородных домов
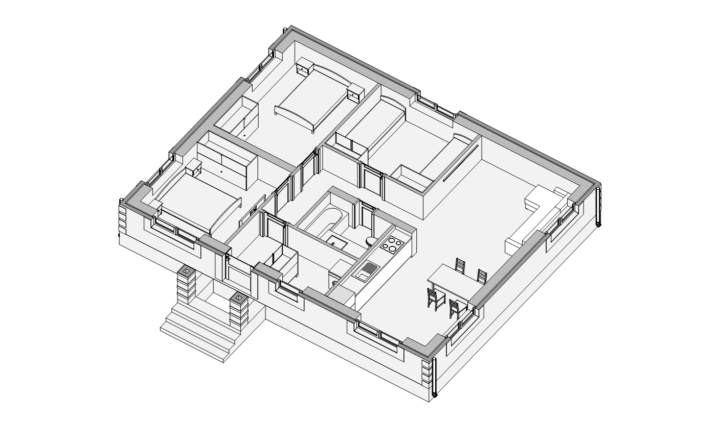
Размер: 11.43 х 10.26 м.
Площадь общая: 83.1 кв. м. 
Стоимость: от 6 000 000 руб.
Y-83
ПРОЕКТ
Планировка
Заголовок
Заголовок
Заголовок
Заголовок
Заголовок
Заголовок
Заголовок
Мы свяжемся с вами, чтобы подробнее обсудить все детали
Узнать актуальную стоимость